The Manors at Central Park - Request to modify Site Plan #02-55 (PUD-1)

On Feb. 27, 2008, a public hearing was held by the Shelby Township Planning Commission regarding a request by Lombardo Homes for a Site Plan modification of the approved building elevations for Lots 1-15 [map] of the Manors at Central Park Condominum development. The approved elevations for Lots 1-15 are ranch style, single-story detached condos and the petitioner is proposing a change to allow two-story detached condos to be built there instead. Following the petitioner's presentation at the public hearing, numerous residents of the Central Park community spoke in opposition to the proposal. Following the Planning Commission's discussion, the Commission voted to table the proposal for future consideration.

The approved minutes of the Feb. 27, 2008 public hearing can be read here.

Lombardo Homes has recently requested that their revised petition be returned to the Planning Commission for consideration at an upcoming public hearing. The Site Plan modification request incorporating their revisions will be reviewed at a Planning Commission Study Meeting on Sept. 10, 2008 and a date for the public hearing will be set shortly thereafter.

The following Site Plan modification request documents were submitted by Anthony Lombardo to the Shelby Township Planning and Zoning Department on Sept. 3, 2008:

Letter:

Cover letter to the Shelby Township Planning Director requesting that Site Plan Modification #02-55 be returned to the Planning Commission

Drawings:

Modified Site Plan
Roof Height Comparison - A Sable "Barclay" ranch model (with optional loft) and a Lombardo "Abbey" two-story model are compared to a proposed Lombardo Loft series building and and existing Pulte two-story home; also includes a rear view "line of sight" comparison between the "Barclay" and "Abbey" as viewed from a proposed Lombardo Loft series building.

Illustrations:

"The Abbey" elevations and floor plan
"The Brentwood" elevations and floor plan
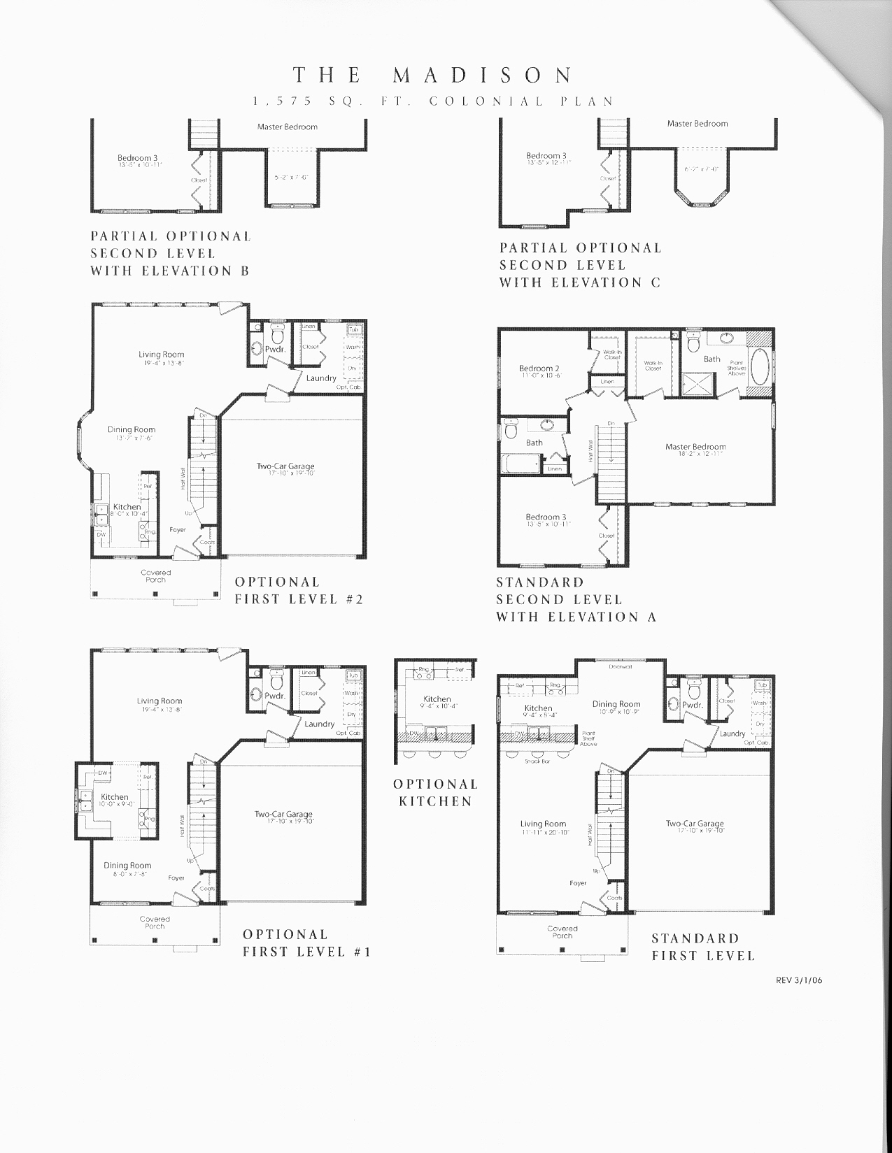
"The Madison" elevations and floor plan
"The Palmer" elevations and floor plan
"The Waterford" elevation "E" and floor plan
"The Halstead" elevation "B" and floor plan
"The Crestwood" elevations "B", "C" and floor plan
"The Hillcrest" elevations and floor plan
"The Carrington" elevations and floor plan
"The Caldwell II" elevations and floor plan

On Sept. 4, 2008, the Shelby Township Planning & Zoning Department prepared a two-page summary of the Site Plan Modification #02-55 request for use by the Planning Commission at their Sept. 10th Study Meeting:

Page 1
Page 2

 

BACK to the Manors at Central Park blog


Created: 10 Sept 2008; Last Revised: 12 Sept 2008